建築条件無売り土地
・お好きな工務店で建築可能です。 ・解体更地渡し ・駐車場スペース新設 ・買主様司法書士指定有
登録日/2024年10月19日 更新日/2026年01月31日 次回更新予定日/随時
お問い合わせ番号/ 16276
間取り
外観
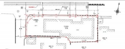
土地
1,888万円
京都府亀岡市西つつじケ丘大山台1丁目3番7- 建物構造/階建
- 軽量鉄骨造/-
- 最寄駅
-
- 山陰本線
- 亀岡駅徒歩25分
- 土地面積/坪数
- 213.28m2 / 64.51坪
- 坪単価
- 29.30万円
- 学校区
-
- 小学校区
- - 距離:-
- 中学校区
- - 距離:-
- 公共設備
-
- ガス
- -
- 水道
- -
- 汚水
- -
- 雑排水
- -
- 接道状況 他
-
- 向
- 一方
- 角地
- -
- 公道
- 南
- 幅員
- 4.00m
- 接面
- -
- 私道
-
- 私道
- -
- 持分
- -
- 面積(区分)
- -
- 面積
- -
- 面積(単位)
- -
- セットバック面積
-
- 状態
- -
- 幅
- -
- 面積
- -
- 借地期間・地代
-
- 借地機関条件
- -
- 借地権契約期間
- -
- 借地権満了日
- -
- 地代
- -
- 建築条件
- なし
- 土地現況
- 上物有
- 引渡条件
- 現況有姿
- 引渡時期
- 相談
--- - 地目
- 宅地
- 地勢
- 高台
- 用途地域
- 第一種低層住居専用地域
- - 建ぺい/容積率
- 50%/80%
- 都市計画
- 市街化区域
- 建築許可理由
- -
- 土地権利
-
- 権利
- 所有権
- 備考
- -
- 再建築
- -
- 国土法届出
- 不要
- その他制限事項
- -
備考:- - フラット利用
- -
- 手付金保証
- -
- 町会費
- --
- リボーン21
- -
- 備考
- ・お好きな工務店で建築可能です。
・解体更地渡し
・駐車場スペース新設
・買主様司法書士指定有 - 取引態様
- 専属




